Схема монтажа с пеногасителем для магазина живого пива
Как разливали пиво без пеногасителя
Пиво - пенящийся напиток. Скорость его налива в бокал ограничена из-за образования пены.
Вам, возможно, не раз приходилось ждать, пока продавец из-за пенообразования долго набирает бокал пива.
Особенно в жаркую погоду.
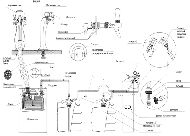
Но так происходит тогда, когда разлив пива производят обычным способом – с помощью пивного крана. Как на картинке справа. Пиво проходит через колонну и разливается с помощью специального пивного крана.
Почему образуется пена? Потому что пиво поступает по шлангам из кеги (бочки с пивом) дальше через пивной охладитель и дальше в колонну и дальше через кран.
Как на схеме ниже: углекислый газ выдавливает пиво из кеги и толкает его дальше по шлангам из колонны. Чтобы пиво пошло, нужно только открыть пивной кран.
В кеге пиво под давлением – как банка с пепси. А когда оно выходит наружу, то так же, как пепси при открытии банки, пенится.
Ну в бокал, еще ладно, но если нужно набрать бутылку, то тут пенообразование – настоящая помеха скорости и бизнесу.
Вот если бы пустую бутылку можно было сначала заполнить углекислотой, чтобы увеличить там давление, то тогда пиво, попадая в бутылку, не пенилось бы. Оказывается, это легко сделать: нужно только сначала углекислоту заставить работать на создание давления в бутылке, а затем – на выталкивание пива из кеги.
вот эту задачу и выполняет пивной пеногаситель
Так вот пеногаситель для пива – это такая хрень штука, которая сначала направляет углекислый газ из баллона прямо в бутылку, а потом этот путь для СО2 закрывается и открывается путь для пива, которое попадает в бутылку.
Смотрим на схему – что же в ней поменялось? Синий шланг – это газопровод. Раньше, без пеногасителя, газ шел только из баллона в кегу, а тут для него появился еще прямой путь в колонну (синий цвет шланга прямо в колонну на схеме). И в колонне теперь не кран пивной стоит, а самый этот пеногаситель. Вот он сначала пускает газ напрямую в бутылку, потом (так же, как в смесителе для воды вы меняете холодную воду на горячую) пускает туда пиво. Вот и вся нехитрая схема.
Там правда еще серый шланг есть – для дренажа. Туда сливается избыток пены, когда она подступает к самому горлышку бутылки (немного пены все-таки образуется).
Кому нужен пеногаситель
Вы планируете открыть точку по розливу пива, но не знаете, нужен вам пеногаситель для пива или нет. Ответ простой – если это барная стойка, где не планируется разливать много пива в бутылки, то пеногаситель не нужен. Разливайте пиво традиционным способом с помощью пивного крана.
Если у вас будет большая проходимость и придется много пива разливать в пластиковую тару, то пеногаситель необходим.
Пеногаситель плюс пивной кран в сборе
Очень важно также отметить, что, если установлен обычный пеногаситель, то можно будет разливать пиво ТОЛЬКО В ПЛАСТИКОВУЮ ТАРУ.
А если нужно разливать пиво еще и в бокалы, то нужно, чтобы работала система:
колонна+пеногаситель+пивной кран
или
стенка+пеногаситель+пивной кран.
Как на схеме:
Только в таком случае можно будет разливать пиво еще и в бокалы.
Нужно отметить, что
не ко всем пеногасителям можно подключить пивной кран
Вот к этим нельзя – там его некуда вкручивать. Это пеногасители Пегасы Новотапы.
А к этим, которые внизу, можно. Это тоже пеногасители Пегасы, но не просто Новотапы, а Новотапы Плюс (“Пегас Новотап+”). Там отверстие с резьбой под пивной кран.
Вот к этим тоже можно – видите дырку с резьбой? Если кран не ставится, то ставится заглушка.
А вот здесь кран поставили.
Повторяем: без пеногасителя пивной кран вкручивался бы сразу в колонну, а для быстрого беспенного розлива между ним и пивной колонной нужно поставить пеногаситель.
Какие бывают пеногасители для пива
На сегодняшний день для пеногашения существует три основных типа оборудовани:
Пеногасители Пегас. Самый первый тип пеногасителей.
Выпускаются трех видов: Пегас обычный, Пегас Новотап и Пегас Новотап+.
Лучше всего конечно Новотапы – они металлические и более износостойкие.
Фастбиры (от слова fast beer).
К ним, к сожалению, нельзя подключить пивной кран. Да и на вид страшненькие, если честно.
А здесь быстро посчитают сколько стоит оборудование для розлива пива с пеногасителями или без.
Поиск
Контакты
+380 44 362 7 108
+380 67 009 8 009
+380 50 332 8 998
+380 99 332 8 338
Демонстрация:
Пн—Пт с 9:30 до 17:30
Киев, ул. Малоземельная 75г
Форма для связи
Категории
- Беспенный розлив ( 8 )
- Быстрый розлив в бокалы ( 1 )
- Видеонаблюдение ( 1 )
- Домашний розлив ( 8 )
- Кеги и фитинги и заборные головки ( 4 )
- Комплектующие для оборудования по розливу пива ( 8 )
- Минипивоварни для ресторана ( 1 )
- Монтаж оборудования ( 6 )
- Новости ( 3 )
- Омыватели бокалов ( 1 )
- Охладители ( 16 )
- Пивная точка ( 11 )
- Пивное оборудование б у ( 1 )
- Пивной ресторан ( 3 )
- Пивные башни ( 4 )
- Пивные колонны ( 11 )
- Пивные краны ( 1 )
- Производители ( 2 )
- Промывочное оборудование ( 6 )
- РАСПРОДАЖА ( 12 )
- Розлив вина ( 1 )
- Ролл-бары ( 3 )
- Самообслуживание ( 4 )
- Системы розлива ( 8 )
- Соединители John Guest ( 1 )
- Счетчики пива ( 8 )
- Технология пивоварения ( 10 )
- Учет и контороль розлива пива ( 3 )
- цены ( 6 )
- Tabletender ( 2 )
Популярные сообщения
-
Кликните по рисунку для увеличения. На схеме показаны следующие элементы: 1. Барная стойка с надстоечным пивным охладителем. 2. Пивные кеги ...
-
Цена – 6 899 грн Смотрите также установку для розлива кваса или пива из кег большей производительности . Этот комплект оборудования для ...
-
Если вы хотите организовать Октоберфест у себя дома… Что понадобится для розлива пива пикник-помпой: 1) Кег с пивом; 2) Емкость достат...
-
Для чего нужен Пегас Устройство «Пегас» используется для ускоренного беспенного разлива любых пенящихся напитков (а не только пива) из сосуд...
-
Для охлаждения пива и других напитков используют охладители 3 разных типов: водяные (проточные) , сухие и гликолевые. Гликолевые системы о...
-
Зачем нужен лёд на пивной колонне? Не для того, чтобы охлаждать пиво: для этого вполне достаточно и обычной системы доохлаждения. Пивные кол...
-
Другие названия - пивная колба , пивная башня , метродиспенсер . Теперь, кстати, можно их купить не только в Украине, но и в России (такж...
-
В этой статье опишем основные моменты, которые следует знать о пивных охладителях. Пивной охладитель (или же, как называют иногда в наро...
-
Все давно привыкли, что ежедневный слив пива и санитарная очистка пивных линий ведут к потерям товара. Вопрос в том, насколько велики потери...
-
Как разливали пиво без пеногасителя Пиво - пенящийся напиток. Скорость его налива в бокал ограничена из-за образования пены. Вам, возмож...
0 коммент. :
Отправить комментарий